- 株式会社 木の家工房 松谷建築
お洒落な外観の中に広がる機能性抜群の間取り。
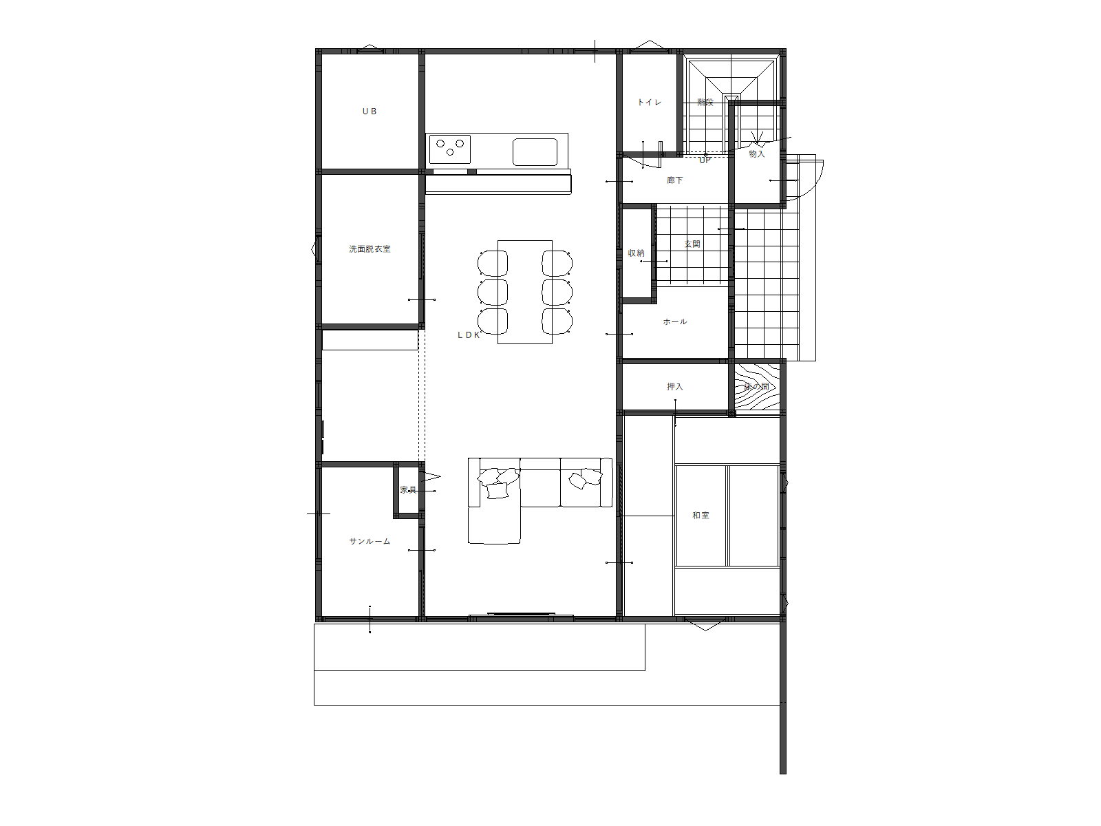
お洒落な外観の中に広がる機能性抜群の間取り。
東側にある玄関はシースルー。日中はもちろん、夜は照明で独特の雰囲気と美しさがさらに増すデザインになりました。こだわりの書斎とエントランス階段には、豪華なスワロフスキーのペンダント照明を採用し、独特の雰囲気を醸し出しています。
家事動線や日々の掃除のことも考えた快適かつ機能性抜群の間取りです。
十人十家、暮らす人のための家づくり。
時間をかけてじっくりと、お気に入りの一棟を創り上げます。
どんな風に暮らしたいのか、そして、どんな風に生きていきたいのか。
私たちは、お客様のご要望やご予算に加えて、趣味や趣向、好きなこと、どこにお金をかけたいのかなど、
とことん話をお聞きした上で、自然素材をたっぷり使った家、空間を創り上げていきます。

About
| 会社名 | 株式会社 木の家工房 松谷建築 |
| 郵便番号・住所 | 〒912-0067 福井県大野市右近次郎40-48 |
| 電話番号 | 0779-66-0683 |
| 営業時間 | 09:00~17:30 |
| 定休日 | 第2・4・5土曜日、日祝日、年末年始 |
| 施工可能エリア | 福井県嶺北エリア |
| 工法・構造 | 木造軸組工法・パネル工法 |
| 対応仕様 | ・ZEH、長期優良住宅、耐震等級3、断熱等級5 ・県産材使用 ・リフォーム対応:耐震診断・耐震補強工事対応 ・店舗デザイン対応 |
| 標準坪単価 | 坪80万円~ |





